ZDLP電動單座調節閥有標準型、波紋管密封型、夾套保溫型等多種品種.產品公稱壓力等級有PN16、40、64;公稱通徑范圍DN25~400.適用流體溫度有-250℃~+560℃范圍內多種檔次.泄漏量標準為Ⅱ級或Ⅳ級.流量特性為線性或等百分比.多種多樣的品種規格可供選擇。
ZDLP電動單座調節閥,配用3601L系列電子式直行程電動執行機構.具有結構緊湊、重量輕、動作靈敏、閥容量大、流量特性準確、拆裝方便等優點.廣泛應用于準確控制氣體、液體、蒸汽等介質的工藝參數如壓力、流量、溫度、液位保持在給定值.特別適用于壓差較大,允許泄漏量也較大且不是很清潔的介質場合。
本系列產品有標準型、波紋管密封型、夾套保溫型等多種品種.產品公稱壓力等級有PN16、40、64;公稱通徑范圍DN25~400.適用流體溫度有-250℃~+560℃范圍內多種檔次.泄漏量標準為Ⅱ級或Ⅳ級.流量特性為線性或等百分比.多種多樣的品種規格可供選擇。
電動調節閥門主要零件材料:
閥體、閥蓋:HT200、ZG230~450、ZG1Cr18Ni9Ti
閥芯、閥座:1Cr18Ni9Ti、司鈦萊合金堆焊
填 料:聚四氟乙烯、柔性石墨、不銹鋼波紋管
墊 片:橡膠石棉板、1cr18Ni9Ti、石墨纏繞墊片
閥桿、推桿:2Cr13、1Cr18Ni9Ti
襯 套:2Cr13
電動調節閥門主要技術參數:
| 公稱通徑mm | 20 | 25 | 32 | 40 | 50 | 65 | 80 | 100 | 125 | 150 | 200 | 250 | 300 | 400 | |
| 閥座通徑mm | 20 | 26 | 32 | 40 | 50 | 66 | 80 | 100 | 125 | 150 | 200 | 250 | 300 | ||
| 額定流量系數kv | 6.9 | 11 | 17.6 | 27.5 | 44 | 69 | 110 | 176 | 275 | 440 | 690 | 1000 | 1600 | 2700 | |
| 公稱壓力(MPa) | 0.6,1.6, 2.5, 4.0, 6.4 | ||||||||||||||
| 行程(mm) | 10 | 16 | 25 | 40 | 60 | 100 | |||||||||
| 流量特性 | 直線,等百分比,快開 | ||||||||||||||
| 工作溫度℃ | -40~230℃(常溫型),散熱片式230~450℃(中溫型),特殊訂貨-100~600℃ | ||||||||||||||
| 法蘭尺寸 | 符合JB78-59、JB79-59標準,可按JB/79.1-94、JB、ANSI、JIS、DIN 等標準訂貨生產 | ||||||||||||||
| 閥體材質 | WCB(ZG230-450)、ZG1Cr18Ni9Ti、ZG0Cr18Ni12Mo2Ti CF8 CF8M | ||||||||||||||
| 閥芯材質 | 1Cr18Ni9,SS304,0Cr18Ni12Mo2Ti,SS316,ZG1Cr18Ni9Ti | ||||||||||||||
| 閥體型式 | 直通雙座鑄造球型閥 | ||||||||||||||
| 上閥蓋型式 | 普通式(常溫),熱片式(中溫),長頸式(低溫) | ||||||||||||||
| 閥體允許壓差 | ≤公稱壓力 | 4.0 | 3.4 | ||||||||||||
| 配用電動執行機構型號 | PSL | PSL-201 | PSL-202 | PSL-204 | PSL-208 | PSL-312 | PSL325 | ||||||||
| 361L | 361LSA-08 | 361LSA-20 | 361LSB-30 | 361LSB-50 | 361LSC-65 | 361LSC-99 | |||||||||
| 防爆型 | 361LXA-20 | 361LXB-30 | 361LXB-50 | ||||||||||||
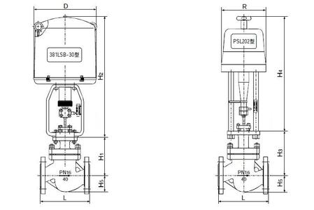
電動調節閥門結構圖:













?公司郵箱登入
?
浙公網安備33032402002441號